Barndominium for sale on acreage Elysian Fields ISD Texas

$210,000

FOR SALE 16240 FM-31, Marshall, Texas, 75672-3635

16240 FM 31, Marshall, TX

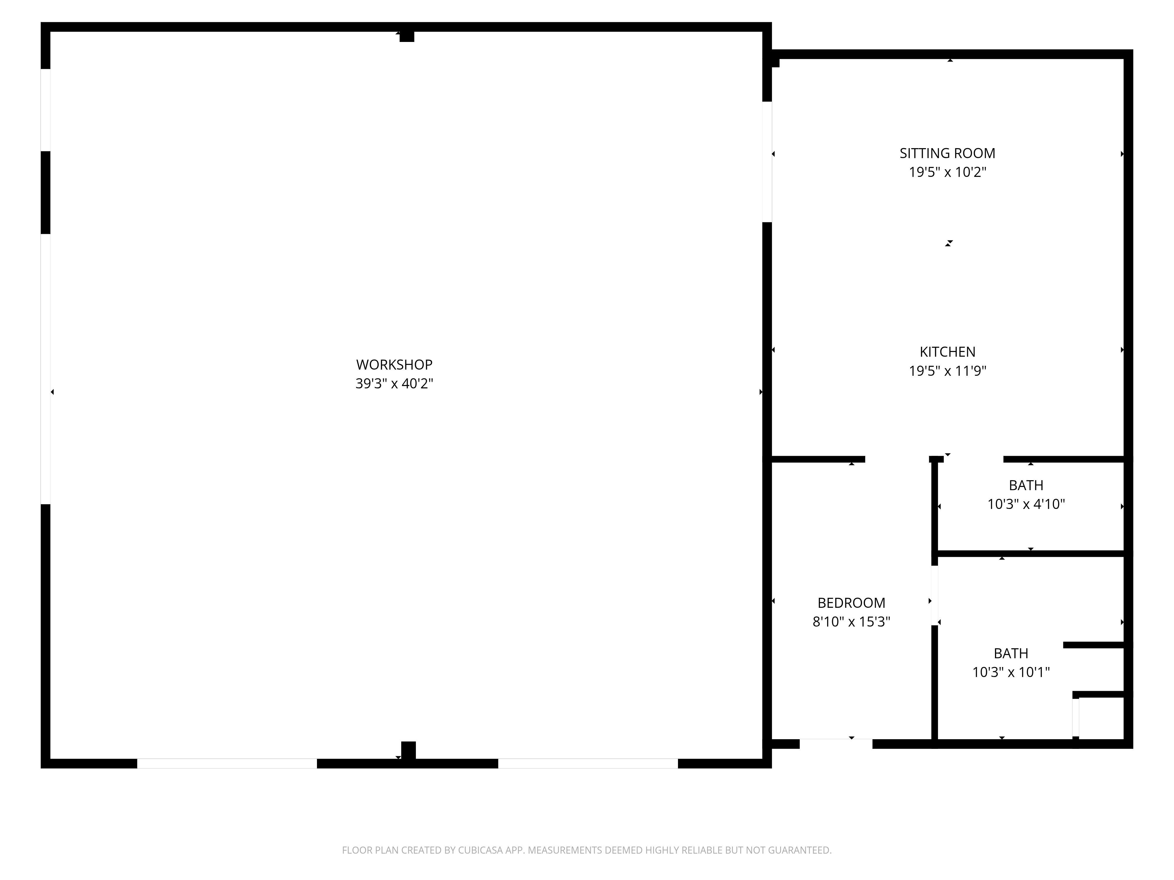
Custom Barndominium on 3 acres in Elysian Fields ISD! This 1-bedroom, 2-bath, 800 sq ft living space is nestled inside a 2,400 sq ft shop offering endless possibilities for expansion or use as a workshop. Inside you'll love the custom cedar kitchen cabinets, concrete floors, and ceiling fans. The home is equipped with two wall units to keep it cool and comfortable year-round. The shop features three overhead doors, allowing plenty of room for projects, storage, or even driving your RV inside. Outside, the property offer just over 3 acres with cleared trails, perfect for exploring, riding, or enjoying the outdoors. Located just minutes from I-20, you'll have easy access to Shreveport to the east and Longview to the west making this property convenient for commuters. Whether you're looking for a weekend retreat, a full-time home, or a property with room to expand, this property delivers space, privacy, and versatility.

Documents

Property Address

16240 FM-31
Marshall
Harrison
TX
75672-3635
United States

Property Details

42249-162400
$210000.00
3.1 Acres
800 SqFt
1
2.0
2018

Property Features

3.07 Acres
Barndominium
Shop
Elysian Fields ISD

Property Amenities

Schools Info

Embedded Map

Videos

Listing Agent

H5 Auction & Realty (Longview)
(903) 331-7177
atabor@h5auctionandrealty.com

Contact Me


Want to take the next step?
I agree to be contacted by the H5 Auction & Realty (Longview) office for real estate services via call, email and/or text. Message frequency varies. To opt out, you can reply "stop" at any time or click the unsubscribe link in the emails. Message and data rates may apply. Reply HELP for help. View Terms of Service and Privacy Policy. If you'd like to unsubscribe click here.